Home Aktuelle
Siedlungsprojekte
Abgeschlossene
beispielhafte Projekte
Unser
Firmenkonzept
Kontakt/
Impressum
  â

      Wuppertal:

Baugebiet

Beisp.
Hauszeile

Haustyp 1

Haustyp 2

Haustyp 3

Haustyp 4

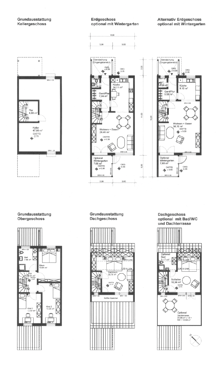
Gebäudetyp 2:

4-6 Personenhaushalt, Breite 6,00 m
Optional mit: Wintergarten und Dachterrasse


Kalkulierter Kaufpreis in der Grundausstattung z.B. auf Parzelle 54:
ca. 250.000 € inkl. Keller und Carport


Der 6,00 m breite 2. Reihenhaustyp mit ca. 124 qm Wohnfläche auf drei Geschossebenen ist vornehmlich für eine Familie mit Kindern entworfen worden.
Der Haustyp bietet auch von der Grundrissaufteilung durch Entfernen von Innenwänden noch Variationsmöglichkeiten je nach Familienbedürfnis.

Computer-Animierte Ansicht der Süd-Seite

  • Die Gesamte Wohn-/Nutzfläche (Erd-, Ober- und Dachgeschoss + Keller) beträgt in der Grundausstattung 175 qm
  • optional kann im Süd-Westen ein Wintergarten von ca. 8 qm Größe integriert werden
  • zudem bieten wir optional eine Dachterrasse im DG mit der Größe von ca. 25,70 qm an

Grundrisse 2. Gebäudetyp: